Search
Close this search box.
Search
Close this search box.

Prodej bytu 3+1 v osobním vlastnictví, 82 m2, Varnsdorf

2 390 000 czk / za nemovitost
včetně služeb RK a právního servisu

Prodej bytu 3+1, 82,87 m2, Varnsdorf

Nabízíme k prodeji prostorný byt v osobním vlastnictví o celkové výměře 91,5 m², o dispozici 3+1 s balkonem, sklepem a komorou. Dispozici je možné upravit na 4+1, což činí tuto nemovitost ideální pro rodinu, která hledá více prostoru.

Byt se nachází ve 3. nadzemním podlaží udržovaného domu v klidné a vyhledávané lokalitě. Je před rekonstrukcí, takže si nový majitel může vytvořit interiér přesně podle svých představ.

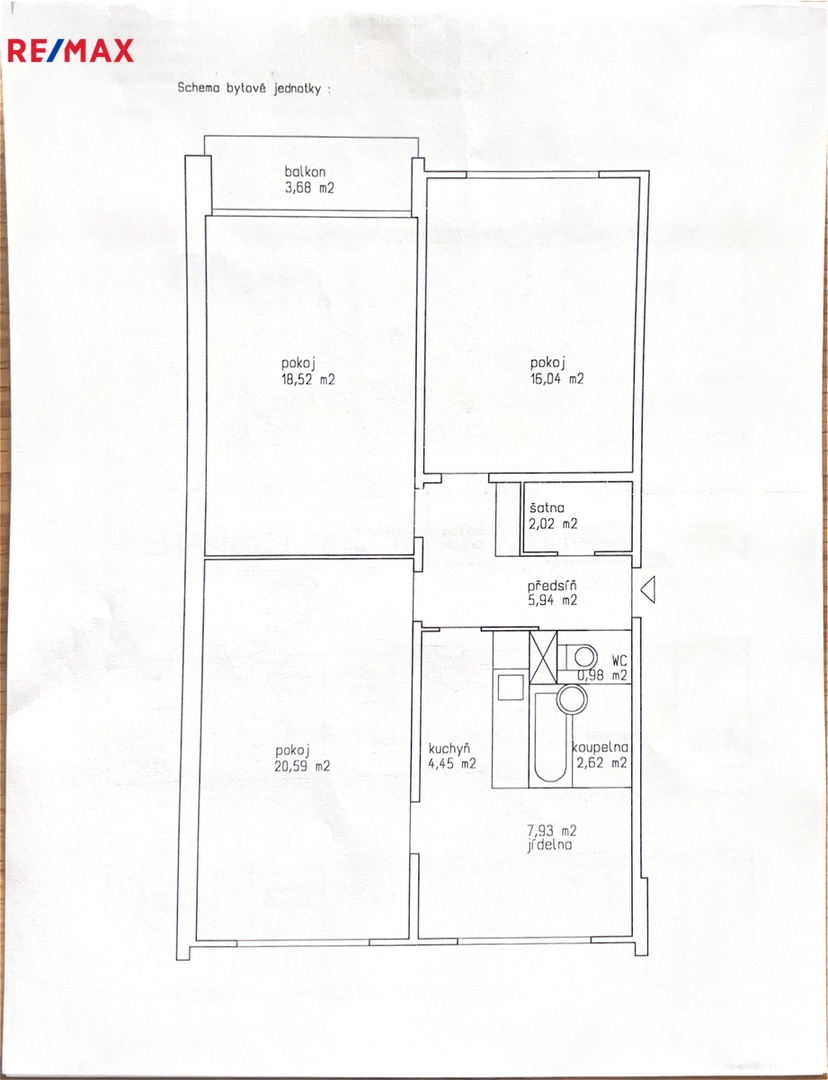
Dispozice:
pokoj (20,59 m²) - možnost spojení/úpravy
ložnice (16,04 m²)
obývací pokoj (18,52 m²)
jídelna (7,93 m²)
kuchyně (4,45 m²)
šatna (2,02 m²)
koupelna (2,62 m²)
samostatné WC (0,98 m²)
balkon (3,68 m²)

K bytu náleží sklepní kóje (cca 3 m²) a další komora v mezipatře (cca 2 m²) – ideální na sportovní výbavu, dětské věci či sezónní úložné věci.

Kostelní ulice patří mezi klidné a stabilní části Varnsdorfu, kde žijí převážně dlouholetí obyvatelé. To přináší bezpečné, tiché a sousedské prostředí. V bezprostřední blízkosti najdete: základní školu, potraviny, restauraci, dětská hřiště. Parkování je možné přímo u domu.

Tento byt nabízí přesně to, co dnes není samozřejmostí: prostor, soukromí a klidné prostředí.

Ráda vám pomohu s financováním i kompletním procesem převodu.
Pro sjednání termínu prohlídky mě neváhejte kontaktovat.
Číslo zakázky: 024-NP07358
Město: Varnsdorf
Ulice: Kostelní
Dispozice: 3+1
Číslo podlaží v domě: 3
Počet nadzemních podlaží objektu: 4
Celková plocha: 82 m2
Zastavěná plocha: 823 m2
Typ nemovitosti: Byty
Druh objektu: Panelová
Stav objektu: Velmi dobrý
Vlastnictví: Osobní
Energetická náročnost budovy: C
Garáž: Ne
Telekomunikace: Telefon, Internet
Doprava: Vlak, Silnice, MHD, Autobus
Voda: Zdroj pro celý objekt
Odpad: Kanalizace
Plyn: Plynovod
Balkón: Ano (3.68 m2)
Lodžie: Ne
Sklep: 3
Výtah: Ne

Mám zájem o nemovitost

Tuto nemovitost vám rád(a) představí

Martina Jandásková

Jandásková Martina


 
Tel. na makléře:
+420 775 072 784

Potřebujete poradit / máte zájem o prohlídku?